İkinci Vakıf Han olarak ta bilinen II. Evkaf Apartmanı; Ankara’nın Altındağ ilçesinin Ulus semtinde, İstiklal Caddesi üzerinde bulunmaktadır. Kira yoluyla gelir elde etmek amacıyla Vakıflar Genel Müdürlüğü tarafından yaptırılmıştır. Eserin ismi ‘evkaf’, Arapçadan dilimize geçen bir kelime olup ‘vakıf’ anlamına gelmektedir. Yapının projesi Mimar Kemaleddin Bey tarafından 1927 hazırlanmış, 1928-1930 yılları arasında inşa edilmiştir.
Mimar Kemaleddin Bey Kimdir?

Kemaleddin Bey, İstanbul doğumlu olup Cumhuriyet Dönemi’ne birçok eseri ile katkı sağlayan Türk mimardır. Babası asker olan Ali Bey’in görevi dolayısıyla Girit’te başladığı eğitimine İstanbul’da devam eden Kemaleddin Bey, 1887 yılında Hendese-i Mülkiye Mektebi’nde mühendislik üzerine eğitim görür. Ancak A. Jasmund adlı hocasının mimari derslerini ilgiyle takip eden mimar, hocasının yanına tayin edilir ve dört sene burada görev yapar. Bu görev süresince de özel bir büro açarak İstanbul’da birkaç konak ve köşkün inşaatına imza atar.
Devlet tarafından mimarlık eğitimi için Almanya’ya gönderilen Kemaleddin Bey, hem okuyup hem çalışarak mesleki tecrübe kazanır. Birçok görevde ismi geçen mimar, öğrenci yetiştirmeye de devam eder. Evkaf Nezareti’nde birçok vakıf hanları, cami, mescit ve mektep projesi hazırlar.
I. Ulusal Mimarlık Akımı‘nın öncülerinden olup eserleri ile Cumhuriyet Dönemi‘nin önemli isimlerinden biri olmuştur. Osmanlı mimarisine hakim olan mimar, kendi üslubunu şekillendirmiş ve ulusal mimari konusuna önem vermiştir. Eserlerinde Batı tarzına ait çizgiler bulunsa da ulusal mimari çizgisinden şaşmamıştır.

1927 tarihinde hayata veda eden mimar, II. Evkaf Apartmanı projesini aynı sene tamamlamış ancak yapım aşamasını görememiştir. II. Evkaf Apartmanı‘nın tasarımında oluşturduğu mekan çeşitliliğinden duyduğu heyecanı eşi Sabiha Hanım’a yazdığı mektupta şöyle ifade ediyor: “Vakıf evlerinin yanına inşa edilecek olan ve parka bakan bu binada, birinci ve ikinci katlarda fuaye ve tuvaletler bulunan süslü bir müzik salonu, büyük bir kumarhane, bilardo ve oyun salonları, çok sayıda dükkan, ofis ve konut bulunmaktadır. Üçüncü, dördüncü ve beşinci katlarda tüm ihtiyaçlara ve sıhhi tesisat ekipmanlarına sahip daireler bulunacaktır. Daire sayısı yirmi altıdır. Müzik salonu, yazın serin, kışın sıcak olması için en son izolasyon sistemi ve klima ekipmanlarıyla izole edilecektir.”
II. Evkaf Apartmanı’nın Mimari Yapısı

Erken Cumhuriyet Dönemi‘ne ait olan eser; kütlesel biçimlenmesi, simetrik plan şeması ve betonarme olarak inşa edilmesi ile I. Ulusal Mimarlık Akımı‘nın izlerini taşımaktadır. Yapı, dikdörtgen biçimine benzer bir plana sahip olup bodrum ve çatı katı da dahil olmak üzere yedi kattan oluşmaktadır. Yapının cephe tasarımı süslemelerden uzak, sade ve dengeli olup, kesme taş görüntüsü veren sıva ile kaplanmıştır.

Sade cephe tasarımı, zemin kattaki yarım daire şeklinde kemer formda olup, normal katlarda ise balkonlarda dairesel form ile hareketlendirilmiş ve cephelerin keskin görünümü yumuşatılmıştır. Çatı ise geniş saçaklarla örtülmüş olup cephe saçaklarıyla ulusal mimariden izler yansıtmaktadır.

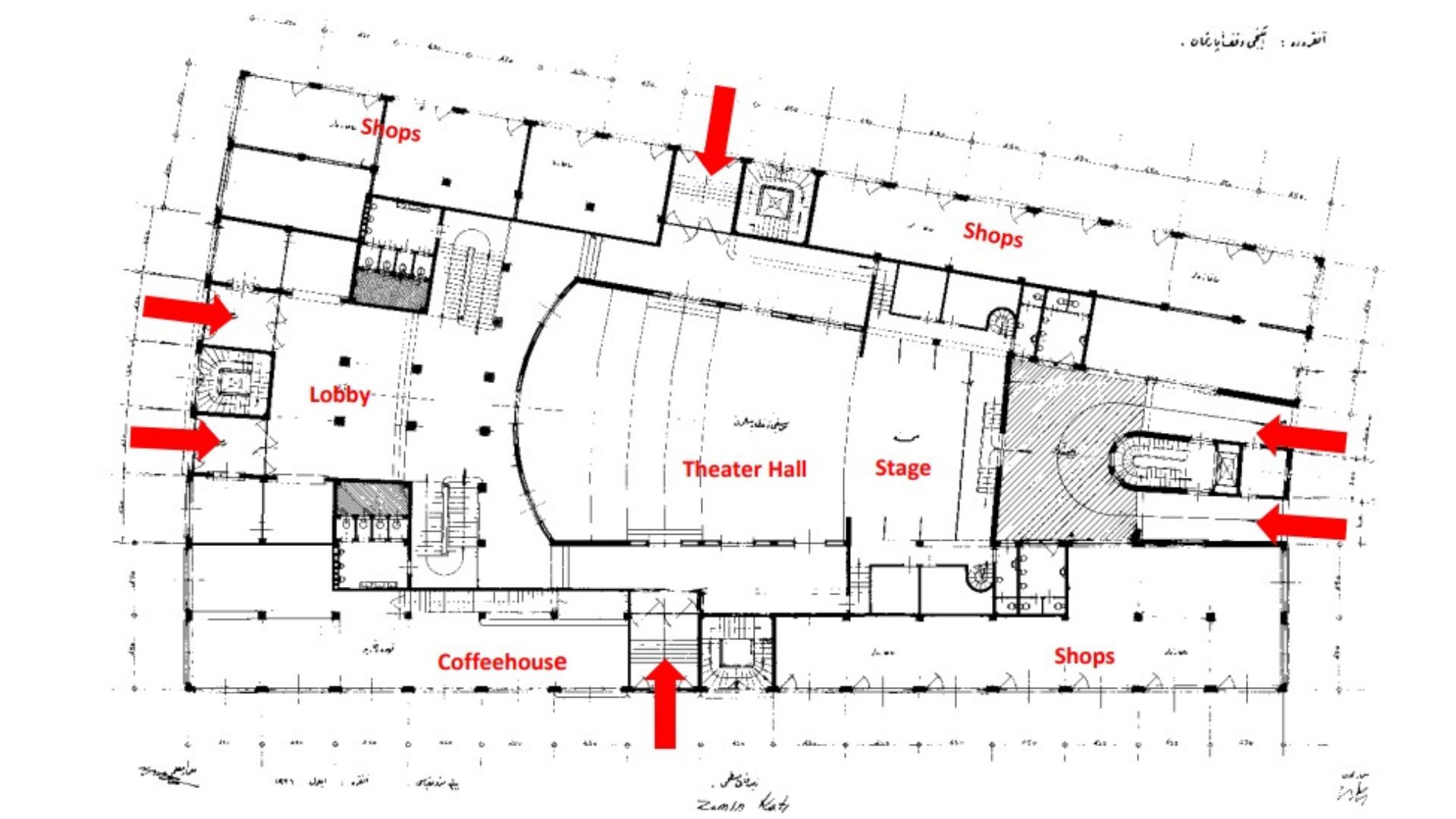
Yapı; zemin katı dükkanlar, kahvehane ve tiyatro salonu, üst katlar ise apartman dairesi olarak kullanılmak üzere tasarlanmıştır. Birinci katta tiyatro salonu, ofisler ve iki daire yer almaktadır. Yapının ortasında büyük bir açık avlu yer almaktadır. İkinci kattan itibaren ise daireler avluya bakmaktadır. Üst katların planı, bir katta sekiz daire olacak şekilde oluşturulmuştur. Zemin kat ve birinci katta sosyal alan oluşturulan yapıda ikinci kattan itibaren ortak alan tasarlanmamıştır.

Dairelere çıkan dört merdiven ve dört asansör bulunmaktadır. Katlarda tek merdivenle yalnızca iki daireye erişim sağlandığı için daireler arası iletişimin zayıf olduğu söylenebilir. Ayrıca Ankara’da ilk asansörün burada kullanıldığını vurgulamak gerekir.
Önemli Konuklar

Erken Cumhuriyet Dönemi eserlerinden olan bu yapı, sanat camiasından bilim camiasına kadar birçok önemli ismi konuk etmiştir. “Beni bu güzel havalar mahvetti/Böyle havada istifa ettim/Evkaftaki memuriyetimden…” diyen şair Orhan Veli Kanık, Beş Şehir kitabında Ankara’yı hayranlıkla bahseden Ahmet Hamdi Tanpınar, Ressam Saip Tuna, Ekrem Akurgal, Sedat Alp, Yahya Kemal, Hasan Ali Yücel, Orhan Peker ve bir dönem Reşat Nuri Güntekin…kulturenvanteri.com
Günümüzde Devlet Tiyatroları Genel Müdürlüğüne bağlı olarak hizmet vermekte olan yapı, Küçük Tiyatro, Oda Tiyatrosu ve Refik Ahmet Sevengil Tiyatro Kütüphanesine ev sahipliği yapmaktadır. Cumhuriyet Dönemi izlerini, I. Ulusal Mimarlık Akımı’nın izlerini ve yazımızda bahsi geçen konukların yaşadığı bu vakıf apartmanını görmenizi ve tiyatroda bir oyun izlemenizi, tarihi solumanız adına tavsiye ederim.
Kaynakça
Altınoğlu, Radomir. “II. Evkaf Apartmanı &Bull; Konumu, Fotoğrafları Ve Hakkındaki Bilgiler &Bull; Kültür Envanteri.” Kültür Envanteri. 15 Oct. 2023. Web. Erişim tarihi: 29.01.2025.
Ankara Kalkınma Ajansı. Ankara Vakıf Eserleri. Ankara. 2019. S.54. Web. Erişim tarihi: 29.01.2025.
Aydoğan. Tolga. “Orhan Veli’nin Ankara’daki İzlerini Anlattı” Kitaptan Sanattan. 28.07.2023. Web. Erişim tarihi: 30.01.2025.
Çobanoğlu. Ahmet Vefa, Ertuğrul. Özkan. “KEMÂLEDDİN BEY, Mimar – TDV İslâm Ansiklopedisi.” TDV İslam Ansiklopedisi. Web. Erişim tarihi: 30.01.2025.
Kent Gündemi. “Mimarlar Odası Ankara Şubesi – İkinci Vakıf Apartmanı-Kemalettin (1928-30).” Mimarlar Odası Ankara Şubesi. Web. Erişim tarihi: 29.01.2025.
Kurt. Yiğit Ahmet. “II. Evkaf Apartmanı – Küçük Tiyatro.” Umut Ortak Arar. 04.11.2021. Web. Erişim tarihi: 23.01.2025.
Yalçın. Ahsennur, Kula. Seda. 2024.“An Innovation Residential Building of the Early Turkish Republican Period: İkinci Evkaf Apartmanı”. Journal of Science Part B: Art, Humanities, Design and Planning. 12(3):431-445(2024). Gazi Üniversitesi. Ankara.
Yeniaras. Orhan. 1998. “Cumhuriyet Devri Türk Sanatı”. Yüksek Lisans Tezi. Atatürk İlkeleri ve İnkılap Tarihi Enstitüsü. İstanbul Üniversitesi. İstanbul.
Erken Cumhuriyet Döneminde Ankara’da inşa edilmiş belki de en hoş ve kullanışlı binadır kendisi. Ayrıca kütüphanesindeki dijital arşivde çok fazla tiyatro oyununun film kaydı da bulunmaktadır. Emeklerinize sağlık!
Teşekkürler, keyifli okumalar diliyorum:)